Dehaco D400 3-stage decontaminatiewagen standaard tandemasser onderstel in RAL kleur naar keuze

Niet voorradig

Interesse? Neem contact met ons op.

Wil je meer informatie over deze Dehaco D400 3-stage decontaminatiewagen standaard tandemasser onderstel in RAL kleur naar keuze?

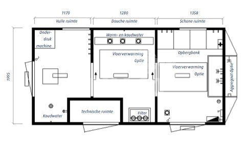
Voor situaties waarin gewerkt wordt met gevaarlijke stoffen heeft Dehaco een mobiele oplossing. Namelijk de decontaminatie unit. Deze unit wordt voornamelijk ingezet voor asbestsanering, grondsanering en bij calamiteiten zoals vogelgriep en varkenspest.

De D400 is standaard voorzien van

Onderdrukmachine
Watertank 250 liter
Gasgeiser inclusief gasfles
Koude douche in de vuile ruimte 
Kraan, inclusief slang in de vuile ruimte 
Éen Douche met mengwater in de douche ruimte 
Wastafel met warm en koud water in de douche ruimte
Elektrische verwarming 2000 Watt
Opbergbank in de schone ruimte
Wandcontactdozen in de schone ruimte
Brandblusser en verbandtrommel
Bergruimte aan de voorzijde

Technische gegevens

Inhoud: Watertank 250 liter
Afmeting: 4x2x2.95 meter
Gewicht: 1350 kg
Onderstel: Tandemasser
Aansluiting elektra: 3-polige CEE stekker Aansluiting water: GK koppeling 1/2”